技術專題
廢漿處理模塊——絮凝加藥系統
2月
27
2018
冠能固控是專業的固液分離設備與廢棄泥漿環保處理設備的制造商,可滿足全球各種資質出口認證、質量認證。目前已經出口至多個國家和地區,用戶遍布全球多個泥漿處理施工現場。其中冠能廢棄泥漿處理系統每年生產量達到50套以上,各種匹配的配套固液分離設備年產量達1000臺以上。冠能固控廢棄泥漿處理系統組成部分為:1、干燥篩模塊。2、離心機模塊。3、絮凝加藥處理模塊。4、泥漿輸送模塊。5、泥漿攪拌混合模塊。6、儲存中轉模塊。其中主要的核心設備為干燥篩模塊、離心機模塊、絮凝加藥處理模塊,本文著重介紹一下絮凝加藥處理模塊系統。
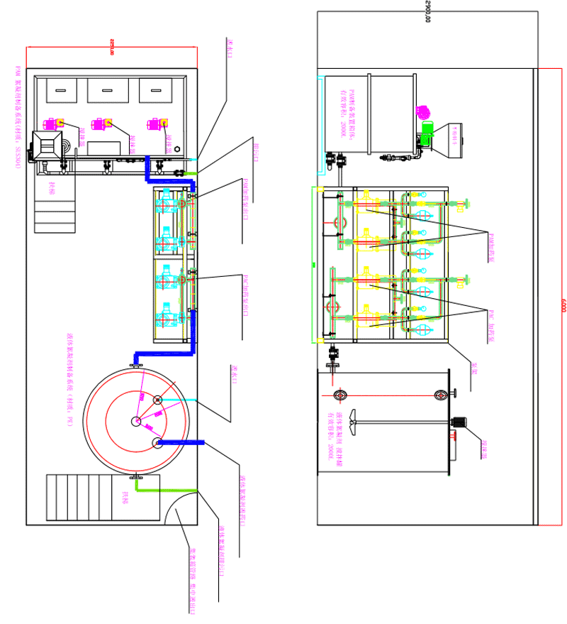
冠能 GNDU2000R 系列 20 尺箱式絮凝加藥系統主要自動配置化學絮凝劑,用于輔助臥螺離心機分離泥漿中的細小顆粒,從而得到干凈的水用于工業用途。或者用于油泥處理、分離油水泥等細小顆粒絮凝工況。
如下圖所示:GNDU2000R絮凝加藥系統(集裝箱式)


通過使用上述GNDU2000R系列20 尺集裝箱式絮凝加藥系統配合冠能高速變頻臥螺離心機,可以分離水基鉆井泥漿中的超細顆粒,滿足循環使用水的要求。對于廢棄泥漿處理系統,冠能絮凝加藥系統尤其重要,它可以幫助離心機處理泥漿變得干凈,并且能夠減少鉆井廢棄物的產生。從而降低整體的廢棄泥漿后工序處理成本。

冠能固控PAM 全自動絮凝加藥系統工作原理描述:
在自動配置藥劑過程中,操作人員把藥劑加到藥劑配置箱中,啟動系統后,藥劑與水混合后 先進入到攪拌溶藥箱,并在這里通過攪拌器進行充分攪拌和混合;當溶藥箱充滿后便自行溢流至熟化溶藥箱,并在這里再一次攪拌混合處理;待熟化溶藥箱充滿后又自行溢流至溶藥存儲箱,這時配置好的藥液便可通過加藥泵投入到加藥點上,已達到細小顆粒的絮凝加速沉淀進行廢棄泥漿中 程度的固體排出。















